Κατηγορία:
Αγροτεμάχια
Περιοχή:
Κύπρος » Λάρνακα » Αραδίππου
Τιμή ανά τ.μ.:
€ 105 /τ.μ.
Εμβαδόν:
1.606 τ.μ.
Ζώνη:
Οικιστική ζώνη
Τελευταία αλλαγή:
πάνω από 2 μήνες πριν
Εμφανίσεις αγγελίας:
2
Σύνδεσμος:
www.plot.gr/48019564
Τηλέφωνο:
Online Χρηματοδότηση
Περιγραφή
Προνομιακό Οικόπεδο προς Πώληση
Μια αποκλειστική ευκαιρία για επένδυση σε ένα σπάνιο οικιστικό οικόπεδο που βρίσκεται σε μία από τις πιο ήσυχες και επιθυμητές περιοχές της Αραδίππου.
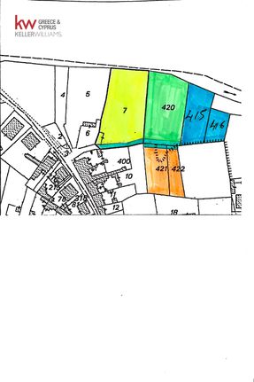
Το τεμάχιο διαθέτει επιβεβαιωμένο έλεγχο διαχωρισμού που πιστοποιεί ότι μπορεί να διαχωριστεί σε οικόπεδα, εφόσον το επιθυμείτε. Η ιδιοκτησία ανήκει σε έναν μόνο ιδιοκτήτη, εξασφαλίζοντας καθαρό τίτλο και μια ομαλή, χωρίς προβλήματα συναλλαγή.
Η περιοχή είναι εγκεκριμένη για οικιστική ανάπτυξη και μπορείτε να χτίσετε είτε κατοικίες είτε πολυκατοικίες, προσφέροντας ευελιξία ανάλογα με τους στόχους σας. Η τοποθεσία είναι ήσυχη και ιδανική για οικογένειες ή επενδυτές που αναζητούν μακροπρόθεσμη αξία.
Βρίσκεται στην Αραδίππου, Λάρνακα, κοντά σε βασικές ανέσεις, αλλά προσφέρει και ένα ήρεμο περιβάλλον με χαμηλή κυκλοφορία. Η περιοχή προβλέπεται επίσης να αναβαθμιστεί σημαντικά με έργα υποδομής, κάνοντάς την μια έξυπνη και μελλοντικά ασφαλή επένδυση.
Είτε είστε εργολάβος είτε κάποιος που θέλει να χτίσει το σπίτι των ονείρων του, αυτό το τεμάχιο προσφέρει εξαιρετικό δυναμικό σε μια από τις πιο υποσχόμενες γειτονιές της Λάρνακας.
Το σκούρο πράσινο χρώμα δείχνει τον διάδρομο που θα καταχωρηθεί σύντομα στο Κτηματολόγιο.