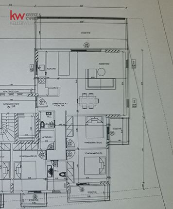
Apartment For sale, floor: 1st, in Glika Nera - Fouresi. The Apartment is 110,15 sq.m.. It consists of: 3 bedrooms, 1 bathrooms, 1 wc, 1 kitchens, 1 living rooms, while it has the following parkings: 1 Underground. The property was built in 2024. Its heating is Autonomous with Heat pump, it has Alluminum frames with Double glazed - Energy Efficient windows, the energy certificate is: A+ and its floors are Tiles. The property's status is: Under construction, it is close to Transportation, School, it has Mountain, City views view. The Apartment is On Corner, With Facade, Bright, Airy and it also has the following unique features and advantages: Window Screens, Elevator, Storage, Security door, Quiet neighborhood, Electric shutters.
For more information: KW Solutions Group, tel.: 2130414087, email:
[email protected].
It is necessary for the indication of the property to present the ID card or passport of ALL those who wish to see the property, before signing (by all) the relevant Indication Order. Finally, ask our Consultant about the Renovation possibilities and the advantages offered to you by our group company, “Resolutions - Renovations”. See more on our main site: https://solutionsgroup.gr/