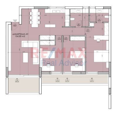
Διαμέρισμα προς πώληση υπό κατασκευή στον 1ο όροφο νεοσύστατου συγκροτήματος κατοικιών σε ένα από τα καλύτερα σημεία της περιοχής Κυπριάδου στα Άνω Πατήσια. Το εμβαδόν του ακινήτου είναι 124 τ.μ. και βρίσκεται σε οικόπεδο 2.000 τ.μ.. Όταν ολοκληρωθούν οι εργασίες του θα αποτελείται από 3 Υ/Δ με ιταλικές ντουλάπες, μπάνιο, wc, κουζίνα εφοδιασμένη με ιταλικά έπιπλα κουζίνας, σαλόνι, ενώ θα διαθέτει ευρύχωρες βεράντες, 1 θέση στάθμευσης στην πιλοτή και αποθήκη υπογείου. Η εκσκαφή και θεμελίωση του συγκροτήματος έχει ξεκινήσει εντός 2024 και το συνολικό έργο θα ολοκληρωθεί εντός 2026. Η θέρμανση του ακινήτου θα είναι αυτόνομη ενδοδαπέδια με αντλία θερμότητας, θα διαθέτει fan coil, ηλιακό, Θερμομόνωση, κουφώματα αλουμινίου ενεργειακά με μεγάλα πλαίσια. Το ενεργειακό πιστοποιητικό θα είναι Α+. Τα δάπεδα θα διαθέτουν ξύλινα ευρωπαϊκά προ γυαλισμένα δάπεδα, κεραμικά πλακίδια μεγάλων επιφανειών. Επιπρόσθετα θα διαθέτει πόρτα ασφαλείας θωρακισμένη, θυροτηλεόραση, σύστημα πυρόσβεσης-πυρανίχνευσης, προεγκατάσταση συναγερμού, τριφασικό ρεύμα, είσοδο με κάρτα, εγκατάσταση φόρτισης ηλεκτρικών οχημάτων. φωτιστικά led, δώμα με φύτευση, σύγχρονο ασανσέρ. Το διαμέρισμα θα είναι φωτεινό, προσόψεως, γωνιακό πολυτελές με όμορφα αρχιτεκτονικά στοιχεία, έχει καλή θέα, ανοιχτωσιά, αστικό τοπίο.
Βρίσκεται σε άριστο σημείο, κοντά στον Ηλεκτρικό σταθμό Ανω Πατησίων και Αγίου Ελευθερίου, σε λοιπές συγκοινωνίες, σχολεία, πλατεία, πάρκο, αθλητικές εγκαταστάσεις, εκκλησία, παιδικούς σταθμούς, λοιπά εκπαιδευτήρια, λαϊκή αγορά, Super Market, αγορά, εστίαση.
Ίδιας διαρρύθμισης και ισο σε μέγεθος διαμέρισμα 124τμ υφίσταται επίσης διαθέσιμο προς πώληση στον 4ο και 5ο όροφο του συγκροτήματος σε διαφορετική τιμή, με κλειστή θέση στάθμευσης πλέον 25.000€, προσφέροντας καλύτερη θέα.
Στην διάθεσή σας για περισσότερες πληροφορίες και για την υπόδειξη των διαμερισμάτων αυτών αλλά και άλλων διαμερισμάτων μικροτέρων ή μεγαλυτέρων σε αριθμό τ.μ. στο ίδιο συγκρότημα υπερσύγχρονων κατοικιών.
RE/MAX Real Advisor, Τηλέφωνο Επικοινωνίας: 2155550611, email:
[email protected], website: www.remax-realadvisor.gr