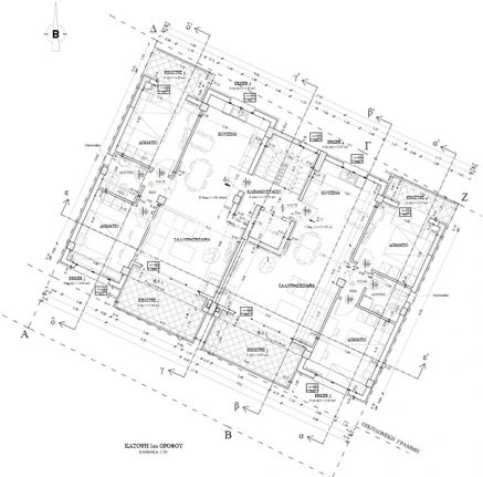
Κωδικός ακινήτου: 108341 - Καβάλα Αγία Βαρβάρα ΠΩΛΕΙΤΑΙ διαμέρισμα στον 1 ο όροφο συνολικής επιφάνειας 105.00 τ.μ. . Αποτελείται από 2 υπνοδωμάτια, σαλόνι, κουζίνα, μπάνιο . H κατασκευή ξεκίνησε το 2024 και διαθέτει θέρμανση ενδοδαπέδια - αντλία θερμότητας, απεριόριστη θέα, κουφώματα αλουμινίου, πόρτα θωρακισμένη, ανελκυστήρα, αποθήκη , κήπο, A/C, σίτες, διπλά τζάμια, ηλιακό θερμοσίφωνα, boiler, ανοιχτωσιά - Τιμή: 275.000 € Διαθέτει εγκατάσταση για τζάκι και εγκατάσταση για ηλεκτρική φόρτιση. Είναι υπό κατασκευή, αποπεράτωση τέλος του 2027. ΔΙΑΧΕΙΡΙΣΤΗΣ ΑΚΙΝΗΤΟΥ: Property Market Καβάλας: Αμ. Ερυθρού Σταυρού 12 - ΤΗΛ: 2511818100 Κιν: 6948654333 - EMAIL:
[email protected] - Για περισσότερα ακίνητα κάντε κλικ στο: https://www.propertymarket.gr